This story is brought to you by Glenmarie Properties.
There’s something special about living near water. Not only does it offer opportunities for sports and recreation, but it creates feelings of peace and refreshment as well. The waterfront resort of Glenmarie Cove in the Klang Valley provides low density residential housing in an environment of outstanding natural beauty.
Echoing some of the well-known waterfront resorts around the world, the concept behind Glenmarie Cove is relaxation in nature with all the luxuries of a high-end development. Situated on a river, the Sungai Langat, and facing an island, Pulau Carey, the resort offers the opportunity for water sports, fishing, and boating. Its many lagoons and green spaces offer enchanting vistas for outdoor recreation, walks, and picnics.
The resort covers two hundred acres, and more than one sixth of it has been set aside for open spaces. It’s great for family life, with a strong sense of community, as well as ample privacy. But despite its tranquillity, its location means that it is within easy reach of KL and neighbouring towns. Its security and communal facilities as well as its green spaces mean that residents can enjoy a calming, stress-free lifestyle.
1. Location

However beautiful a place may be, location is always critical. Nestled along the Langat River, it is situated off Jalan Telok Gong, Klang and near several major highways. If you commute to Kuala Lumpur, it’s only a 40 minute drive from KLCC on the KESAS highway. And it’s within easy reach of KLIA, a mere half hour’s drive, making air travel very easy.
Nearer to hand, are the facilities of Klang Town Centre and Subang Jaya, both of which are 20 minutes away. Klang Town, with its royal palace and historical monuments, has good schools and hospitals. Subang Jaya offers medical facilities, as well as leisure and entertainment opportunities. It is also known for its broad range of educational establishments, from pre-school all the way through to higher education.
Both Klang Town and Subang Jaya have excellent shopping opportunities ranging from upscale malls and shopping centres to more local markets.
2. Facilities

Glenmarie Cove is a gated resort and offers round-the-clock security coverage which means that residents can relax and enjoy the facilities to the full.
The resort has a community life, centred on the clubhouse. There’s a gym, a large swimming pool, and a café cum multi-purpose hall. There’s a feeling of welcome to join in the many activities or freedom to just do your own thing.
3. Accommodation
Myuna Villas are open for sale. They’re semi-Ds with 3,205 square feet of built-up living space. Built on generous lot sizes averaging 42 feet by 80 feet, they are designed for leisurely tropical in-door out-door living with patios and terraces.
The ground floor has a large living room and both wet and dry kitchens. There’s a powder room and a guest bedroom with an attached bathroom. Some may choose to make this space a study or home office. Upstairs there is a secluded family room and three more bedrooms, including the master bedroom and private terrace, all with their own bathrooms.
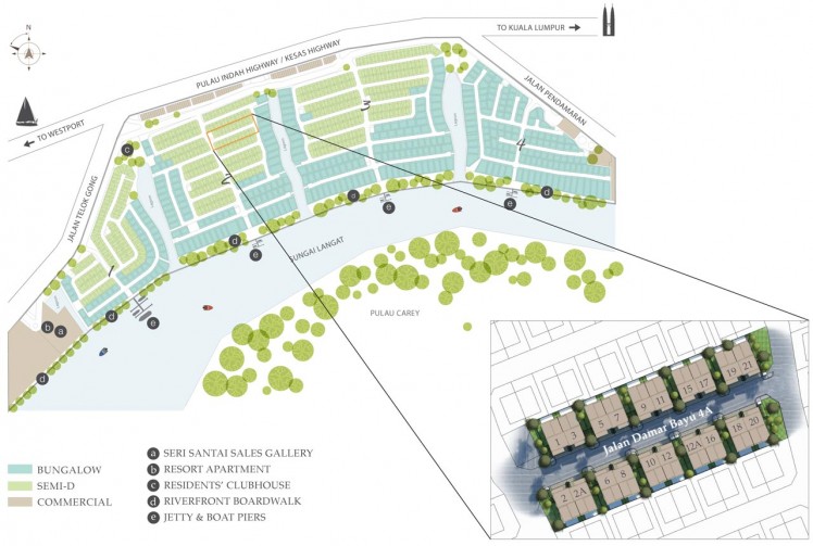
Location of Myuna Villas within Glenmarie Cove Site Plan

Floor Plans of Myuna Villa
Ground Floor

First Floor

4. The River Frontage

The river frontage is what really distinguishes Glenmarie Cove. You can moor your boat at one of the exclusive private jetties (one for each of the resort’s four precincts). The river is great for cruising and fishing and other water sports.
But there are other ways to enjoy the river as well. Many residents jog or walk along the two kilometre boardwalk which runs beside the river. The early morning and dusk are particularly good times for this. Within the resort, there are many lagoons and “islands of green” space which encourage gentle exercise, relaxation, and enjoyment of nature.
Here is a Google Map Showing Glenmarie Cove’s Location:
Learn more about Glenmarie Cove here.
